Previous | Next | Discuss :: Free Advice (General Feng Shui)
Dear Cecil
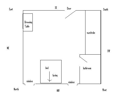
I hope you can give me some advice on my master bedroom arrangement. My gua no. is 6 and my wife is 9, I know my good directions are bad for my wife but what to do...I married her. So can you advice me on my room layout whether is good or bad based on me and advice some remedies for my wife. My house is facing NW and the bed is also facing NW. I have attached a layout plan of my room.
Thanks a lot.
Alan
masterbedroom.JPG
master bedroom (12,518 bytes)
|
|
[ Site Search | Forum Search | Picture Search | Site Map ] |
|
|
|
|
||
|
Help Desk: (65) 9785-3171 |
||
|
|
|
|
|
Highlights |
|
Extend your learning with Master Cecil Lee's Applied Feng Shui Made Easy Book. |
|
Site Navigation |
|
|
|
|
![]()